Požární úseky nevýrobních objektů

Podstatným podkladem požární ochrany (PO) je požární bezpečnost stavebních objektů. Jedná se o schopnost stavebních objektů bránit v případě požáru ztrátám na životech a zdraví osob, popř. zvířat a ztrátám majetku; dosahuje se ji vhodným urbanistickým začleněním objektu, jeho dispozičním, konstrukčním a materiálovým řešením nebo požárně bezpečnostními zařízeními a opatřeními.

Z důvodu bránění šíření požáru se stavební objekty dělí na menší požárně ohraničené celky – tzv. požární úseky (PÚ). Požární úsek je základní posuzovanou jednotkou z hlediska požární bezpečnosti stavebních objektů. Jedná se o prostor stavebního objektu, ohraničený požárně dělícími konstrukcemi, jejichž požární odolnost (doba, během níž je konstrukce schopna odolávat teplotám vzniklým při požáru, aniž by ztratila svou funkci. Udává se v minutách, a to 30, 45, 60, 90, 120, 180) se stanoví podle požárního rizika, popř. podle předpokládané doby trvání požáru.

Požární úseky mohou být ohraničené i požárně bezpečnostním zařízením (systémy, technická zařízení a výrobky pro stavby podmiňující požární bezpečnost stavby nebo jiného zařízení, např. požární klapky, požární dveře a požární uzávěry otvorů včetně jejich funkčního vybavení, systémy a prvky zajišťující zvýšení požární odolnosti stavebních konstrukcí nebo snížení hořlavosti stavebních hmot, vodní clony, požární přepážky a ucpávky).

Přesahuje-li velikost objektu rozměry požárního úseku, stanovené výpočtem dle normy ČSN 730802, musí se objekt dělit do požárních úseků. Dále se musí do požárních úseků dělit provozy, prostory, které jsou uvedeny v normě.

Samostatný požární úsek musí vždy tvořit např.:

  • chráněné únikové cesty;
  • evakuační a požární výtahy, pokud nejsou součástí chráněné únikové cesty;
  • výtahové a instalační šachty, kabelové šachty a kanály, shozy odpadků, které procházejí více požárními úseky;
  • strojovny výtahů, strojovny vzduchotechniky, kotelny a jiná technická zařízení, která mají půdorysné plochy větší než 50 m2;
  • prostory určené pro zajištění požární bezpečnosti staveb, např. strojovny samočinného stabilního hasicího zařízení, čerpací stanice požární vody, prostory náhradního zdroje elektrické energie – dieselagregáty atd.;
  • prostory a provozy, které podle věcně příslušných norem musí tvořit samostatné požární úseky, nebo kde je nebezpečí výbuchu, uvolnění toxických látek apod.;
  • prodejní prostory ve vícepodlažních obchodních domech;
  • prodejní prostory v obchodních centrech s jedním nadzemním podlažím;
  • atd.

Rozdělení objektu do požárních úseků najdeme v požárně bezpečnostním řešení stavby, popř. dříve v technické zprávě nebo požární zprávě. Při preventivních kontrolách se tímto dokumentem řídí osoby odborně způsobilé v požární ochraně, popř. technici PO a nebo preventisté PO.

POZOR! V případě, že dojde ke změně požárních úseků (změně účelu užívání nebo stavebním úpravám) v rámci stavebního řízení, je nutné zpracovat nové požárně bezpečnostní řešení stavby, které musí být schváleno Hasičským záchranným sborem!

Pokud norma přímo nestanovuje velikost požárních úseků nebo funkční jednotky, které mají tvořit samostatné požární úseky, je třeba požární úseky volit tak, aby:

  • byl zajištěn snadný a bezpečný únik osob z každého požárního úseku;
  • byl případný rozsah škod co nejmenší;
  • byl zajištěn rychlý a účinný zásah požárních jednotek;
  • byly odděleny provozy s vysokým požárním rizikem, popř. s vysokým součinitelem „a“, požárně odděleny od ostatních provozů;
  • nebyly požárně dělicí konstrukce narušeny množstvím prostupů;
  • náklady spojené s dělením objektu do požárních úseků byly co nejmenší;
  • nebyla narušena funkce objektu (provoz) požárně dělicími konstrukcemi.

Zajištění požární ochrany není zrovna nejlevnější záležitostí. Z důvodu snížení nákladů za požárně dělící konstrukce (okna a dveře s požární odolností), zjednodušení výpočtů pro bezpečnou evakuaci apod., se doporučuje dělit objekt na co nejmenší počet PÚ (vytvoření PÚ z těch provozů, které musejí tvořit samostatný požární úsek a zbylé prostory rozdělit s ohledem na počet podlaží a mezní rozměry). Pokud ovšem v objektu existuje důležitý provoz, který je nutné chránit před požárem, je nejjednodušším řešením udělat z něj samostatný požární úsek (samozřejmě v souladu požadavků normy).

Jestliže stavební objekt není dělen do požárních úseků, považuje se za jeden požární úsek (většinou se jedná o rodinné domy, menší budovy apod.).

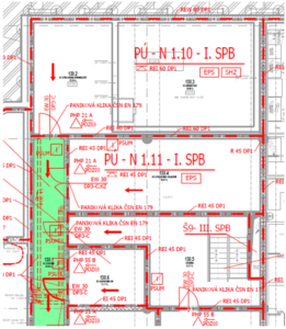
Grafické znázornění požárních úseků

Obrázek 1 – Požární úseky jsou v grafické části znázorněny čerchovanou červenou čarou a označeny. Např. PÚ – N1.10 – I. SPB značí, že se jedná o PÚ v prvním nadzemním podlaží, pořadové číslo požárního úseku je 10, a jedná se o první stupeň požární bezpečnosti